|
| 家 賃 |
49,800 円 |
共益費 |
3,200円 |
駐車場 |
5,500円
軽5,000円 |
| 敷 金 |
0円 |
礼 金 |
0円 |
水道代 |
2,000円 |
|
|
| ペット 可否 |
相談可能 |
| 所 在 地 |
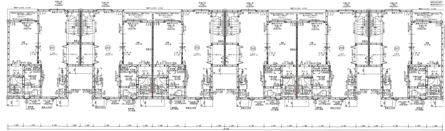
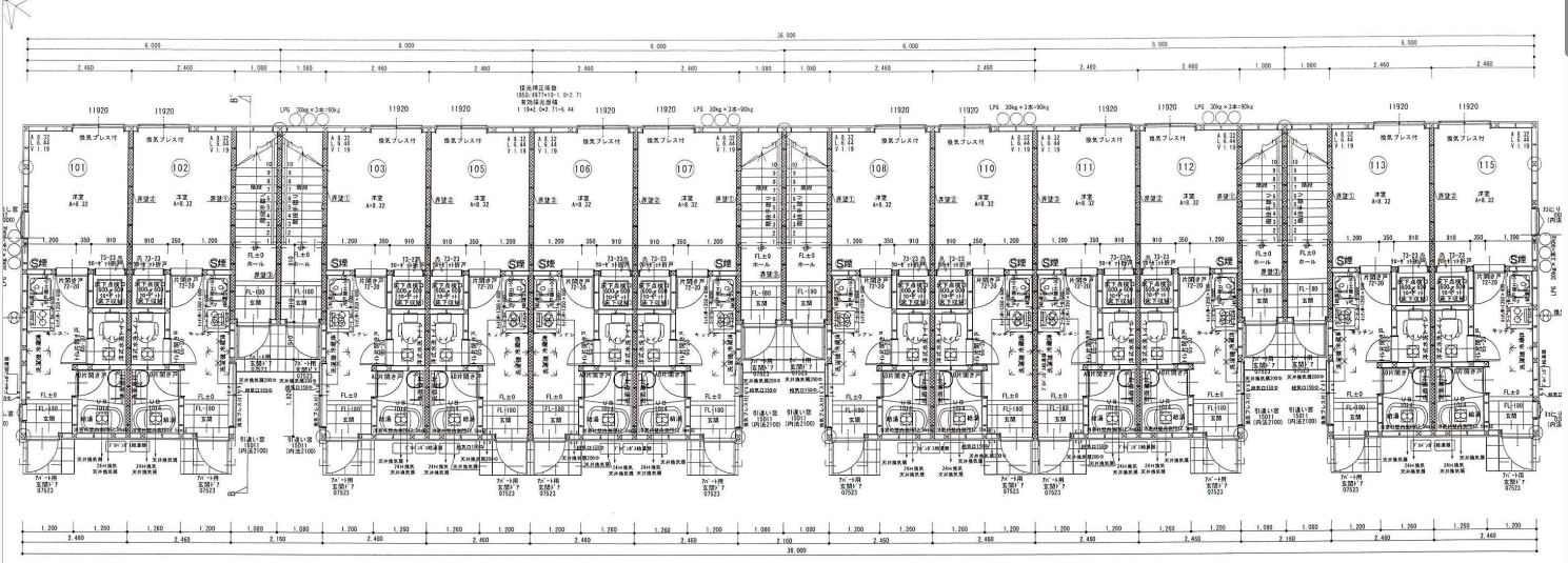
和歌山市田尻260-1
201.202.203.205.206.207
号室 |
| 学 校 区 |
|
| 交 通 |
|
| 総 戸 数 |
18 戸 |
| 種 別 |
木造 2階建て |
| 間 取 |
1LDK |
| 占 有 面 積 |
43.68u |
| 築 年 数 |
令和5年8月完成 |
| 設 備 |
給湯 3 箇所 プロパンガス
洗濯機置き場(室内) トイレ(水洗・洋式) |
| 備 考 |
特約
ペットは可能ですが、鳴き声等複数件クレームが入った場合
ペット同居不可となる場合がございます。
退去時のペットによる修繕費用は借主負担。
2年間の短期特約必須
2年以内は2ヶ月分家賃
鍵紛失時2万円頂戴します。
ハウスクリーニング代退去時1ヶ月分家賃
退去前連絡2か月前
駐車場利用しない場合は、家賃+2,000円
インターネット無料
2025年6/2より変更
水道代が固定の場合、入居者が2人になる場合は水道代が1,000円追加になります。
駐車場料金を
軽区画 税込み5,000円 普通区画 税込み5,500円
|
|
|
|