|
| 家 賃 |
46,000円 |
共益費 |
0円 |
駐車場 |
軽1台かギリギリ乗用車1台 |
| 敷 金 |
0円 |
礼 金 |
0円 |
水道代 |
実費 |
|
|
| ペット 可否 |
相談可能 |
| 所 在 地 |
〒640-8303
和歌山県和歌山市鳴神48−7 |
| 学 校 区 |
宮小学校 日進中学校 |
| 交 通 |
|
| 総 戸 数 |
1戸 |
| 構 造 |
木造 2 階建て |
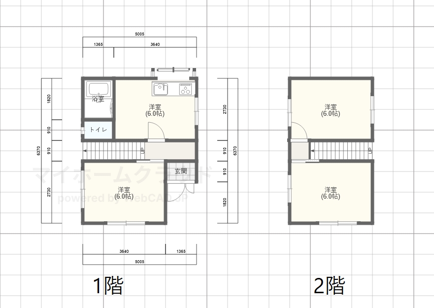
| 間 取 |
3DK |
| 占 有 面 積 |
土地 132.24 u 建物 u(1F 30.91u・2F 21.62u) |
| 築 年 |
昭和52年4月完成 |
| 設 備 |
プロパンガス 洗濯機置き場(室内) トイレ(簡易水洗) |
| 備 考 |
特約
ペットは相談可能ですが、鳴き声等複数件クレームが入った場合
ペット同居不可となる場合がございます。
退去時のペットによる修繕費用は借主負担。
1年未満 家賃2ヶ月分
2年以内は1ヶ月分家賃
ハウスクリーニング代退去時1ヶ月分家賃 |
|
|
|